国标楔式闸阀
产品型号:Z41H
公称通径:DN50~1200mm
压力范围:PN1.0~16.0MPa
工作温度:-29℃~+600℃
主体材质:碳钢、不锈钢、合金钢
设计与制造:GB12234
结构长度:GB12221
法兰尺寸:GB9113 JB79
压力温度:GB913
试验检验:GB/T13927 、JB/T9092
国标铸钢闸阀适用于公称压力PN1.6~16.0MPa,工作温度-46~600℃的石油、化工、火力电站等各种工况的管路上,切断或接通管路介质。
其主要结构特点有
1、产品结构合理、密封可靠、性能优良、造型美观。
2、密封面堆焊Co基硬质合金,耐磨、耐蚀、抗擦伤性能好、使用寿命长。
3、阀杆经调质及表面氮化处理,有良好的抗腐蚀性及抗擦伤性。
4、阀门设有倒密封结构,密封可靠。
5、零件材质及法兰、对焊端尺寸可根据实际工况或用户要求合理选配,满足各种工程需要。
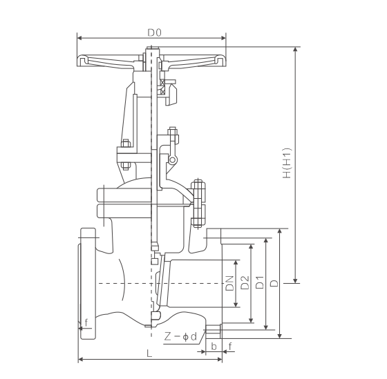
主要连接外形尺寸
|
DN(mm) |
L |
D |
D1 |
D2 |
b-f |
z-φd |
手动 |
|
|
H |
D0 |
|||||||
|
Z40/41H/W-10C Z40/41/H/Y-10P/R/PL/RL Z40/41W-10P/R/PL/RL Z40/41Y-10I |
||||||||
|
25 |
127 |
115 |
85 |
65 |
14-2 |
4-φ14 |
257 |
140 |
|
32 |
140 |
135 |
100 |
78 |
16-2 |
4-φ18 |
257 |
160 |
|
40 |
165 |
145 |
110 |
88 |
18-3 |
4-φ18 |
257 |
180 |
|
50 |
180 |
160 |
125 |
102 |
18-3 |
4-φ18 |
289 |
180 |
|
65 |
195 |
180 |
145 |
122 |
18-3 |
4-φ18 |
334 |
180 |
|
80 |
210 |
195 |
160 |
138 |
20-3 |
8-φ18 |
377 |
200 |
|
100 |
230 |
215 |
180 |
158 |
20-3 |
8-φ18 |
433 |
200 |
|
125 |
255 |
245 |
210 |
188 |
22-3 |
8-φ18 |
527 |
240 |
|
150 |
280 |
280 |
240 |
212 |
22-3 |
8-φ22 |
596 |
240 |
|
200 |
330 |
335 |
295 |
268 |
24-3 |
8-φ22 |
772 |
320 |
|
250 |
360 |
390 |
350 |
320 |
26-3 |
12-φ22 |
904 |
320 |
|
300 |
420 |
440 |
400 |
370 |
26-4 |
12-φ22 |
1045 |
400 |
|
350 |
450 |
500 |
460 |
430 |
26-4 |
16-φ22 |
1177 |
400 |
|
400 |
480 |
565 |
515 |
482 |
26-4 |
16-φ26 |
1345 |
500 |
|
450 |
510 |
615 |
565 |
532 |
28-4 |
20-φ26 |
1497 |
500 |
|
500 |
540 |
670 |
620 |
585 |
32-4 |
20-φ26 |
1648 |
720 |
|
600 |
600 |
780 |
725 |
685 |
36-5 |
20-φ30 |
1648 |
720 |
|
700 |
660 |
895 |
840 |
800 |
36-5 |
24-φ30 |
1648 |
720 |
|
800 |
720 |
1010 |
950 |
905 |
38-5 |
24-φ33 |
1648 |
720 |
|
900 |
800 |
1110 |
1050 |
1005 |
38-5 |
28-φ33 |
1648 |
720 |
|
1000 |
850 |
1220 |
1160 |
1115 |
38-5 |
28-φ36 |
1648 |
720 |
|
1200 |
1000 |
1450 |
1380 |
1328 |
44-5 |
32-φ39 |
1648 |
720 |
随着经济高速发展,市场竞争越来越激烈,用户对阀门产品的要求也越来越多,并且对服务的要求也越来越高;我司销售部门为适应市场发展的要求,专业设立了服务培训组,为服务质量添加完善的工作,我司的售前、售中、售后服务工作经由专业的销售员来完成。
一、冠环阀门售前服务:
做到技术与销售的良好结合,让用户的每一次采购都有较好的服务体验。
①进行采购前产品技术沟通和交流,主动给予建议。
②在进行产品型号选择时考虑是否成本合理工矿效率等问题。
③不能达到工矿要求时,根据客户的特殊要求,安排设计师合理改善。
二、冠环阀门售中服务:
尊重每位用户;给用户一份省心,放心的整体价值服务。
①进行性价比:比价格,比质量,比服务,反思是否有不做到位的地方。
②严格按相关标准和技术要求进行阀门的检测和试验。
③在合作过程中,依照合同,保质保量准时交货,随时保持与用户联系。
④定制期间,相关技术人员可来我司进行产品监造和检验,同时,我司会提供该产品的结构图及详细文件资料,来做监造文件。
⑤对特殊工矿或定做的产品,可协商专业技术员亲临现场指导。
⑥我公司在发货前以电话进行产品型号、口径、数量、件数的确认。
三、冠环阀门售后服务:
好的服务铸就好的企业让客户无后顾之忧。
①按合同要求提供产品的合格证、检验报告、安装说明书等。
②顾客在验收产品过程中,如出现与合同要求不符时,我司接到顾客通知后两小时内给予处理。
③我司提供十二个月的产品质保期,时间从验收合格之日起计算。
④在正确安装和使用下,出现产品质量问题,本公司将负责到底。
冠环阀门包修包换承诺:
①在正常的储运、安装、保养、使用条件下,因产品的质量问题不能正常使用时,提供三保四包: 保质、保量、保及时、包修、包换、包退、包损失。
②在接到质量信息反馈时,将在24小时内提出处理意见,并做到100小时内赶到现场做处理。
③可根据用户需求协商提供备品、备件和安装、调试、维修服务。
为了让您采购到满意的阀门,减少阀门订购过程出现的问题,也是提高我们工作人员的工作效率。我们希望您提供详尽的订货需求,以便我们为您提高更周到的服务!
阀门订货说明:
1、①产品名称与型号,②公称直径,③阀体材质,④公称压力,⑤使用介质,⑥使用温度,⑦驱动方式,⑧是否带附件,以便我们的为您正确选型。
2、如有特殊要求时请在订购产品时注明。
3、若已经由设计单位选定的型号,请按型号直接向我司销售部订购。
4、当使用的场合非常重要或环境比较复杂时,请您尽量提供设计图。
欢迎您访问我们的网站,如有任何疑问,您可以致电给我们,我们一定会尽心尽力为您提供高品质的服务,详细咨询:15000098987。


我要咨询











021-67895388
shghfmc@163.com